潍坊一体化预制泵站主要是将各类生活污水,工业废水,医疗废水,食品加工废水等各类废水进行收集,运输到专门处理的污水厂中。由于这些污水大多是不能依靠自身的重力进行运输和处理的就容易造成水环境的污染散发难闻的气味影响周边居民,所以需要一体化预制泵站。
一、设备构造
一体化预制泵站的密封性是非常好的。它的筒体大多采用的是玻璃钢材质采用优质玻纤,韧性好,不断丝,无渗漏。它是高度集成的系统无论您需要的是干式还是湿式泵坑,亦或两者结合,我们都可以按照要求精确制作,并一体化运输,包含泵。管道、阀门、控制系统、液位监测装置等。
而且一体化预制泵站施工量小且施工周期短,一般一周内即可完成安装;同时配备先进的专用监控系统,可实现泵站远程控制且无人值守。可广泛安装于室外、绿化带、道路等场所。尤其在施工作业面小、人口密度大、建筑集中的地方更有优势且前期成本和后期维护保养费用较低。
一体化预制泵站搭载高效粉碎格栅机,通过高硬度合金刀具的同向切割作用, 将污水中的大粒径颗粒物进行切碎,防止固体垃圾造成水泵的堵塞及损毁,影响污水处理的效率。IP68防水电机,让产品使用更加安全,对于固体杂质较少的水体,可以选择提篮式格栅,以减少购置及使用成本。
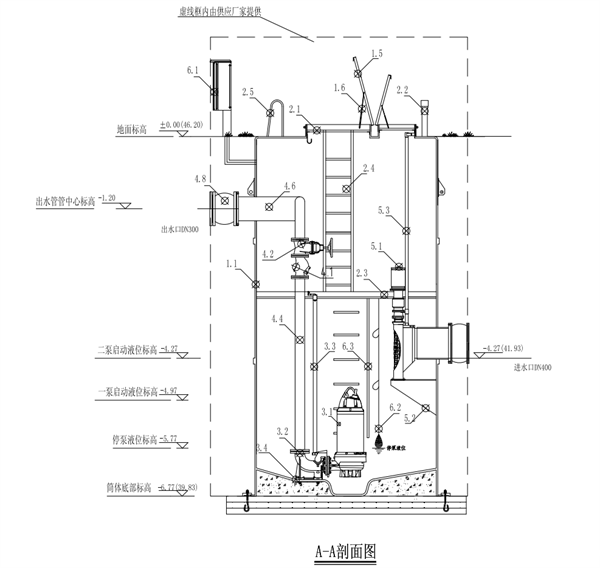
一体化预制泵站将泵、管道、控制系统和通风系统等集成为一体,并在工程预制生产,用于提升和输送水介质的泵站。泵站主体由筒体、水泵、提升装置、管道、阀门、格栅、液位传感器、控制系统和通风系统等部件组成。
二、一体化预制泵站技术原理
一体化预制泵站在欧洲有超过60年的研究、开发和使用历史,已成为欧洲市政给水、排水泵站的主要解决方案。近10年来,随着一体化预制泵站在世界范围内的推广,已经遍布世界各地,为各地提供服务。那么,接下来,技术人员就来给大家科普一下一体化预制泵站。
潍坊一体化预制泵站外壳为筒体,内部用一根内井筒代替内部管道,水泵安装在内井筒中,水流从进水口进入筒体,经过筒体底部的整流板后进入内井筒,经过水泵加压后,沿着内井筒向上打到出水口。
三、一体化预制泵站技术特点
所谓一体化预制泵站(又称:一体化混凝土浇灌泵房)是指采用整体结构型式设计的水泥砂浆输送设备系统。潍坊一体化预制泵站包括有固定式和移动式两种类型;其中固定式的由底座和上部钢结构组成,可安装在地面或地下的基础上;而移动型的则是由底盘及行走机构组成的箱形装置,其底部设有滑轮轨道与底板连接并可在其上行驶。
1、相比传统混凝土泵站,工厂预制,占地面积小,建设周期短。
2、智能化程度高,自动控制及监测运行状态,可以实现远程监控、无人值守。
3、设备运行振动低,噪音低,故障率低,维保成本低。
3.一体化预制泵站技术标准
(1)《一体化预制泵站应用技术规程》(DB33/T 1110-2015);
(2)《一体化预制泵站应用技术规程》(CECS407:2015)。

四、一体化预制泵站应用范围
一体化预制泵站主要适用于水源水取水,防洪排涝,以及雨水、污废水输送等水利、市政领域。


